Pronájem prostor: Pronájem kanceláře 41 m²
PRONÁJEM

Pronájem kanceláře 41 m²

Kontakt
Centrum Kaštanová
Centrum Kaštanová +420 607 000 707 info@kastanova.cz
Otevírací doba
Po - Pá 09:00 - 18:00
So 09:00 - 13:00
Ne zavřeno

Jako majitel Centra bydlení a designu Kaštanová Vám nabízíme k pronájmu soubor kancelářských prostor v areálu Centra.

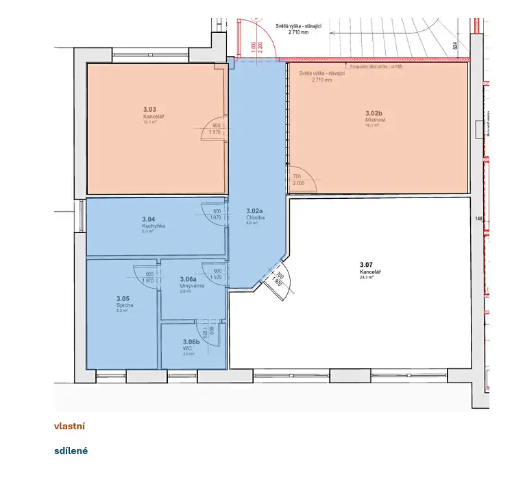
Jedná se o kancelářský celek ve 3.NP budovy A o celkové výměře 40,9 m². Prostor se skládá z kanceláře 12,1 m², jednací místnosti 16,1 m² a podílu na společných prostorách 12,7 m² (tj. chodba, kuchyňka, sociální zázemí sdílené s jedním nájemcem). Kancelář je vybavena klimatizací a na podlaze je položen koberec. Kancelář je nabízena bez vybavení. (po dohodě se současným nájemcem je možný odkup vybraného vybavení)

Nájemné:     

• 8.515 Kč/ měsíc bez DPH

Ostatní náklady související s pronájmem kanceláře: 

• spotřeba energií (teplo, elektřina)

• servisní poplatek zahrnující režijní náklady spojené se správou budov

• marketingový příspěvek

• parkování za 690 Kč bez DPH/ park. místo/ měsíc

• je možné objednat i další služby (připojení k internetu)

 

Atraktivní lokalita s výbornou dostupností se nachází v Brně – Tuřanech, v těsné blízkosti sjezdu z dálnice D1 a D2. Zastávka městské hromadné dopravy vzdálena cca 300 m. V areálu je dostatek parkovacích míst pro zákazníky.

Součástí Centra je i kavárna, která kromě občerstvení nabízí i elegantní prostory jednacích a školicích místností pro reprezentativní jednání a schůzky s vašimi zákazníky či partnery.

Kancelář je dostupná dle domluvy

Bližší informace Vám rádi sdělíme při osobní schůzce.

Další prostory k pronájmu

PLNĚ OBSAZENO

Aktuálně nemáme v rámci Centra Kaštanová žádné volné prostory k pronájmu. Situace se může každou chvíli změni...

Odběr novinek

Zadejte vaši emailovou adresu a my vám budeme posílat všechny články, trendy a zajímavé akce.

Vložením e-mailu souhlasíte s podmínkami ochrany osobních údajů.